Can Santacilia
Can Santacilia






























Can Santacilia
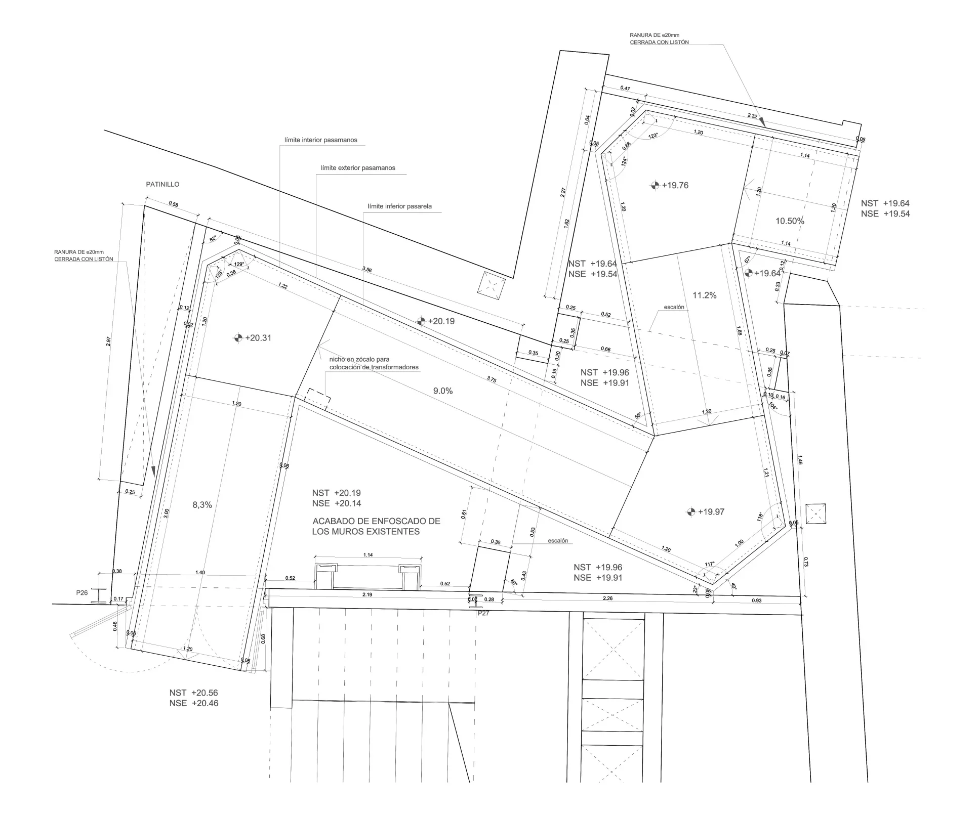
Can Santacilia es un proyecto residencial de 3300 m2 con 15 viviendas y zonas comunes. Se trata de una cuidadosa reforma de dos edificios situados en el corazón del casco antiguo de Palma de Mallorca.
Can Santacilia
Can Santacilia es un proyecto residencial de 3300 m2 con 15 viviendas y zonas comunes. Se trata de una cuidadosa reforma de dos edificios situados en el corazón del casco antiguo de Palma de Mallorca.








Can Santacilia
Can Santacilia














Can Santacilia
Arquitectura y diseño interior: OHLAB / oliver hernaiz architecture lab
Equipo OHLAB: Paloma Hernaiz, Jaime Oliver with Rebeca Lavín, Robin Harloff, Maria Bruna Pisciotta, Mercé Solar, Luis Quiles, Silvia Morais, Ángela Suárez, Wiktoria Ginter, Camila Ospina, Pedro Rodríguez, Laura Colomer, Eusebiu Spac, Agustín Verdejo.
Aparejador: Jorge Ramón
Estructura: AMM Technical group
Ingeniería de instalaciones: AMM Technical group
Constructora: Diazgar
Diseño de cocinas: Espacio Home Design
Arqueóloga: Elvira González
Obra artística: Pedro Oliver
Diseño gráfico: Studio Roses
Finalista: Premios FAD
Ganador: Frame Awards – November winner
Finalista: WAF awards 2022
Finalista: INSIDE awards 2022
Preseleccionado: Dezeen awards 2022
Impresas:
Magazine La Vanguardia 12/03/2023
The Plan – Contract Magazine. Abril 2023
Revista Diseño Interior. Mayo 2023
On Diseño. Octubre 2023
IFDM – Wonder Book 2023
Digital:
Revista Manera 08/11/2022
Wprost 21/11/2022
Afasia 22/11/2022
AD España 24/11/2022
Metalocus 30/11/2022
Archivibe 01/12/2022
NEO2 02/12/2022
Decor-Design 16/12/2022
Dezeen 16/12/2022
Archi-expo 19/12/2022
AD Italia 02/01/2023
Elle Decor 02/01/2023
Domus 03/01/2023
Arquitectura Viva 05/01/2023
Frame 16/01/2023
Arch Daily 23/01/2023
Arquitectura y Diseño 29/01/2023
Stirworld 28/02/2023
Magazine La Vanguardia 12/03/2023
Revista Interiores 13/03/2023
The Plan 01/04/2023
Plain Magazine 28/08/2023
Expansion Fuera de Serie 03/12/2023
Revista Interiores 09/01/2024
Arkitera 24/03/2024
Can Santacilia
Equipo & Premios