Clinica Emardental

Palma de Mallorca

Clinica Emardental

Palma de Mallorca
Nicho1/2

Clinica Emardental

Palma de Mallorca

Este proyecto de Clínica Dental para Emardental juega el diálogo de dos tipos de ambientes que reflejan los valores de la Clínica.

Clinica Emardental

Palma de Mallorca

Este proyecto de Clínica Dental para Emardental juega el diálogo de dos tipos de ambientes que reflejan los valores de la Clínica.

Clinica Emardental

Palma de Mallorca

Clinica Emardental

Palma de Mallorca
Por un lado, la zona pública: sala de espera, recepción y zonas de paso. Un espacio cálido, acogedor y sinuoso; acabado en madera de roble de tonos suaves y líneas curvas; espacio que intuitivamente guía al paciente en la circulación y le acompaña en la espera; con una iluminación suave y tamizada por lamas de madera que según los ritmos más o menos densos dotan de mayor o menor privacidad e iluminación.
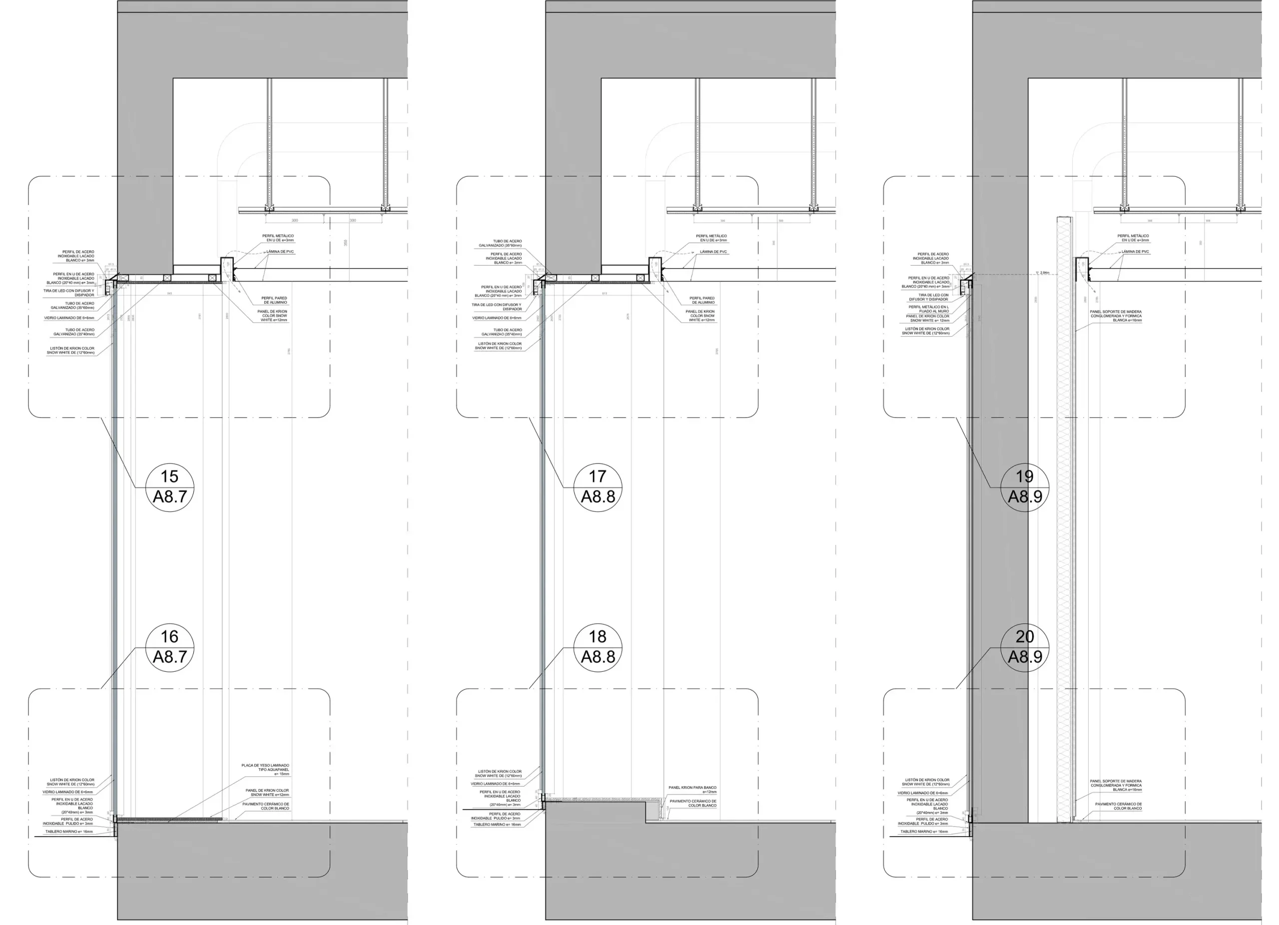
Por otro lado, las zonas de trabajo: cabinas de tratamientos, quirófanos, esterilización, laboratorio y oficinas. Espacios precisos, tecnológicos e impolutos; acabados en materiales técnicos, cartesianos, resistentes, de fácil limpieza; espacios que tranquilizan al recordar el rigor y la precisión con la que aquí se trabaja; con una iluminación perfectamente estudiada para maximizar la eficiencia lumínica sin generar sombras ni deslumbramientos, combinando la luz natural tamizada mediante unas lamas de krion con un techo textil tensado retroiluminado y con una iluminación puntual en zonas específicas.

Clinica Emardental

Palma de Mallorca

Clinica Emardental

Palma de Mallorca