Edificio RA
Edificio RA
















Edificio RA
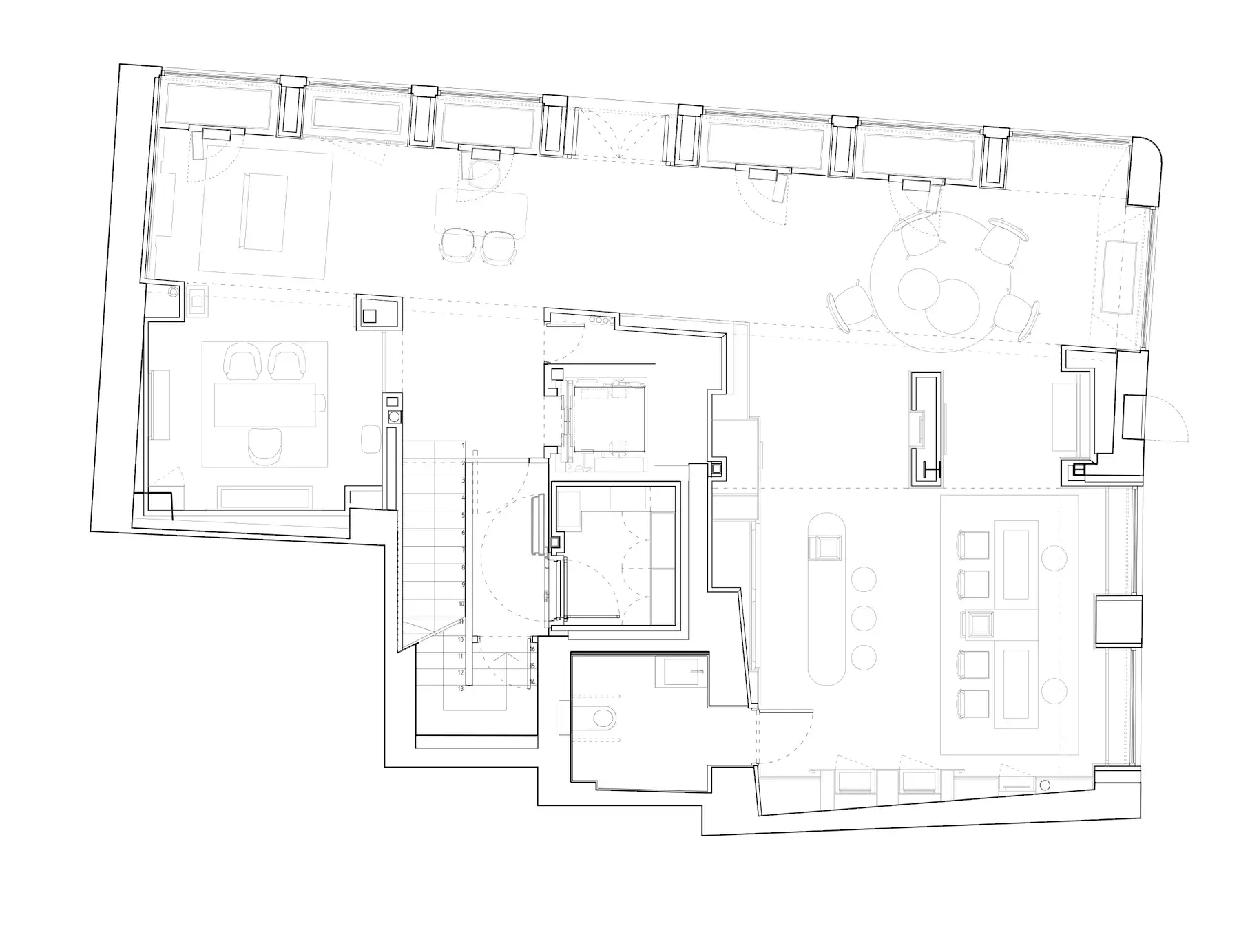
En el corazón del distrito histórico de Palma, OHLAB ha diseñado la nueva tienda insignia y sede central para una histórica relojería fundada en 1879. Esta renovación armoniza la esencia histórica del espacio con elementos contemporáneos.
Edificio RA
En el corazón del distrito histórico de Palma, OHLAB ha diseñado la nueva tienda insignia y sede central para una histórica relojería fundada en 1879. Esta renovación armoniza la esencia histórica del espacio con elementos contemporáneos.






Edificio RA
Edificio RA











Edificio RA
Cliente: Relojería Alemana
Arquitectura y Diseño Interior: OHLAB / oliver hernaiz architecture lab
Equipo de OHLAB: Paloma Hernaiz y Jaime Oliver, con Robin Harloff, Bruna Pisciotta, Rebeca Lavin, Laura Colomer, Luis Quiles, Sonia Hernansanz, Inma Carroquino, Camila Ospina, Lara Ortega, Toni Ripoll, Katerina Rangelova
Aparejador: Jorge Ramon
Contratista General: Goccisa
Instalaciones: Ingenio Consultores
Consultores de ingeniería estructural: Hima Estructuras
Instalación lumínica de la escalera diseñada por OHLAB con luminarias artesanales de Contain
Wallpaper*.Agosto 2024.
Edificio RA
Equipo & Premios