Oficinas RA
Oficinas RA











Oficinas RA
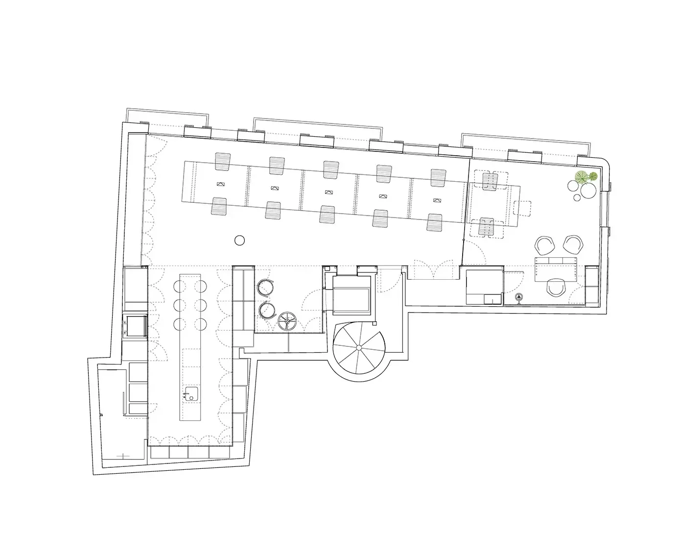
La expansión de la Relojería Alemana, para quienes OHLAB ha diseñado sus dos últimas tiendas, hizo necesario un nuevo espacio de oficinas. Este espacio de 125 m2 se encuentra en el último piso de su sede en Palma de Mallorca.
Oficinas RA
La expansión de la Relojería Alemana, para quienes OHLAB ha diseñado sus dos últimas tiendas, hizo necesario un nuevo espacio de oficinas. Este espacio de 125 m2 se encuentra en el último piso de su sede en Palma de Mallorca.




Oficinas RA
Oficinas RA


Oficinas RA
Paloma Hernaiz y Jaime Oliver con Rebeca Lavín, Marina Esteban
Dirección de obra: Paloma Hernaiz, Jaime Oliver (arquitectos), Jorge Ramón (aparejador)
Fotos: José Hevia
Ganadores del premio Record Interiors 2016
ARCHITECTURAL RECORD Oct 2016
PLATAFORMA ARQUITECTURA Nov 2016
DISEÑO INTERIOR Abril 2017
PROYECTO CONTRACT Mayo 2017
INZIDE Junio 2017
THE OTHER OFFICE 3 Enero 2018
Oficinas RA
Equipo & Premios