PARAL·LEL
PARAL·LEL





















PARAL·LEL
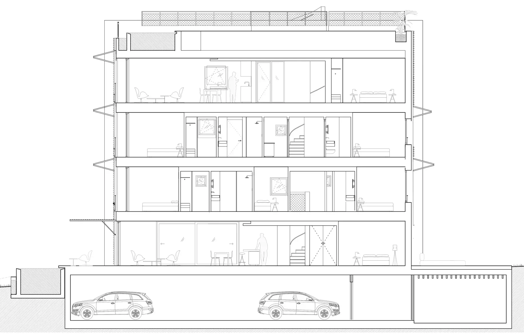
Paral·lel es un proyecto residencial situado en el barrio de la Bonanova, una tranquila zona residencial en el suroeste de Palma. El proyecto consta de dos bloques independientes.
PARAL·LEL
Paral·lel es un proyecto residencial situado en el barrio de la Bonanova, una tranquila zona residencial en el suroeste de Palma. El proyecto consta de dos bloques independientes.




PARAL·LEL
PARAL·LEL







PARAL·LEL
Arquitectura y diseño interior: OHLAB / Paloma Hernaiz y Jaime Oliver
Equipo OHLAB: Paloma Hernaiz and Jaime Oliver with Rebeca Lavín, Robin Harloff, Silvia Morais, Loreto Angulo, Luis Quiles, M.Bruna Pisciotta, Pedro Rodríguez, Mercé Solar, Eusebiu Spac, Lara Ortega.
Aparejador: Jorge Ramón
Estructura: DICAES
Fachada de madera, consultoría y fabricación: GRUPO GUBIA
Consultores de ingeniería: INGENIO consultores
Cocinas y mobiliario: Espacio Home Design
Contratista: DIAZGAR
Fotografías: José Hevia
Publicaciones impresas:
The Plan. Noviembre 2023
Neo2. Noviembre 2023
Revista Diseño Interior. Enero 2024
Publicaciones digitales:
Arch Daily 08/12/2024
Dezeen 12/01/2024
Desing Boom 12/12/2023
Arquitectura Viva 09/01/2024
Arch Eyes 17/01/2024
Revista diseño de Interior 01/12/2022
Amazing Architecture 13/12/2023
AD España 19/12/2023
Ambientes 05/01/2024
Illustrarch 01/01/2024
Archello 06/12/2023
Metalocus 16/11/2023
The Plan 06/11/2023
NEO2 01/12/2023
Afasia 16/01/2022
Gooood 24/01/2024
Archilovers 20/12/2023
Arquitectura Viva 08/01/2024
NAN 02/03/2024
Revista Diseño Interior 01/03/2024
PARAL·LEL
Equipo & Premios