Pop-Up Office

Palma de Mallorca

Pop-Up Office

Palma de Mallorca

Pop-Up Office

Palma de Mallorca

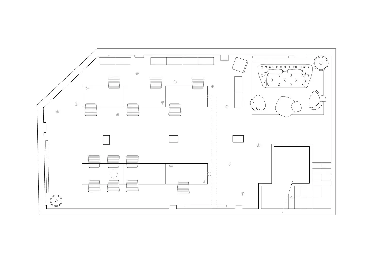
POP-UP OFFICE es un concepto de oficina temporal, improvisada, reutilizable, eficiente, transparente, que optimiza recursos, no malgasta, saca partido. Una estrategia de guerrilla simple y eficaz. La propuesta está pensada para un espacio sin aparente atractivo, el sótano de un almacén eléctrico, y un cliente (ocupante, usuario) con una buena colección de arte y de mobiliario.

Pop-Up Office

Palma de Mallorca

POP-UP OFFICE es un concepto de oficina temporal, improvisada, reutilizable, eficiente, transparente, que optimiza recursos, no malgasta, saca partido. Una estrategia de guerrilla simple y eficaz. La propuesta está pensada para un espacio sin aparente atractivo, el sótano de un almacén eléctrico, y un cliente (ocupante, usuario) con una buena colección de arte y de mobiliario.

Pop-Up Office

Palma de Mallorca

Pop-Up Office

Palma de Mallorca
Instrucciones:
1. DEMOLICIÓN: Demoler tabiquería, desmontar el falso techo e instalaciones inutilizadas, rascar el gotelé en paredes, pilares y escalera de acceso.

2. ACTUACIÓN: Pintar el suelo con poliuretano blanco satinado, colocar instalaciones vistas de acabado industrial, iluminación con 15 puntos (casquillos con bombillas de incandescencia transparentes) no alineados y a diferentes alturas, lámparas de salón en lounge y mesa de reuniones.

3. OCUPACIÓN: Organizar las zonas de trabajo con mobiliario modular de USM lacado negro y crear una zona de descanso/reuniones/lounge reutilizando piezas de mobiliario y arte del cliente.

Pop-Up Office

Palma de Mallorca

Pop-Up Office

Palma de Mallorca