Puro Hotel

Palma de Mallorca

Puro Hotel

Palma de Mallorca
Cabecero1/2
Minibar1/2
Baño1/2

Puro Hotel

Palma de Mallorca

Puro es un emblemático hotel boutique de 22 habitaciones ubicado en el corazón del barrio de La Lonja, en el centro histórico de Palma.

Puro Hotel

Palma de Mallorca

Puro es un emblemático hotel boutique de 22 habitaciones ubicado en el corazón del barrio de La Lonja, en el centro histórico de Palma.

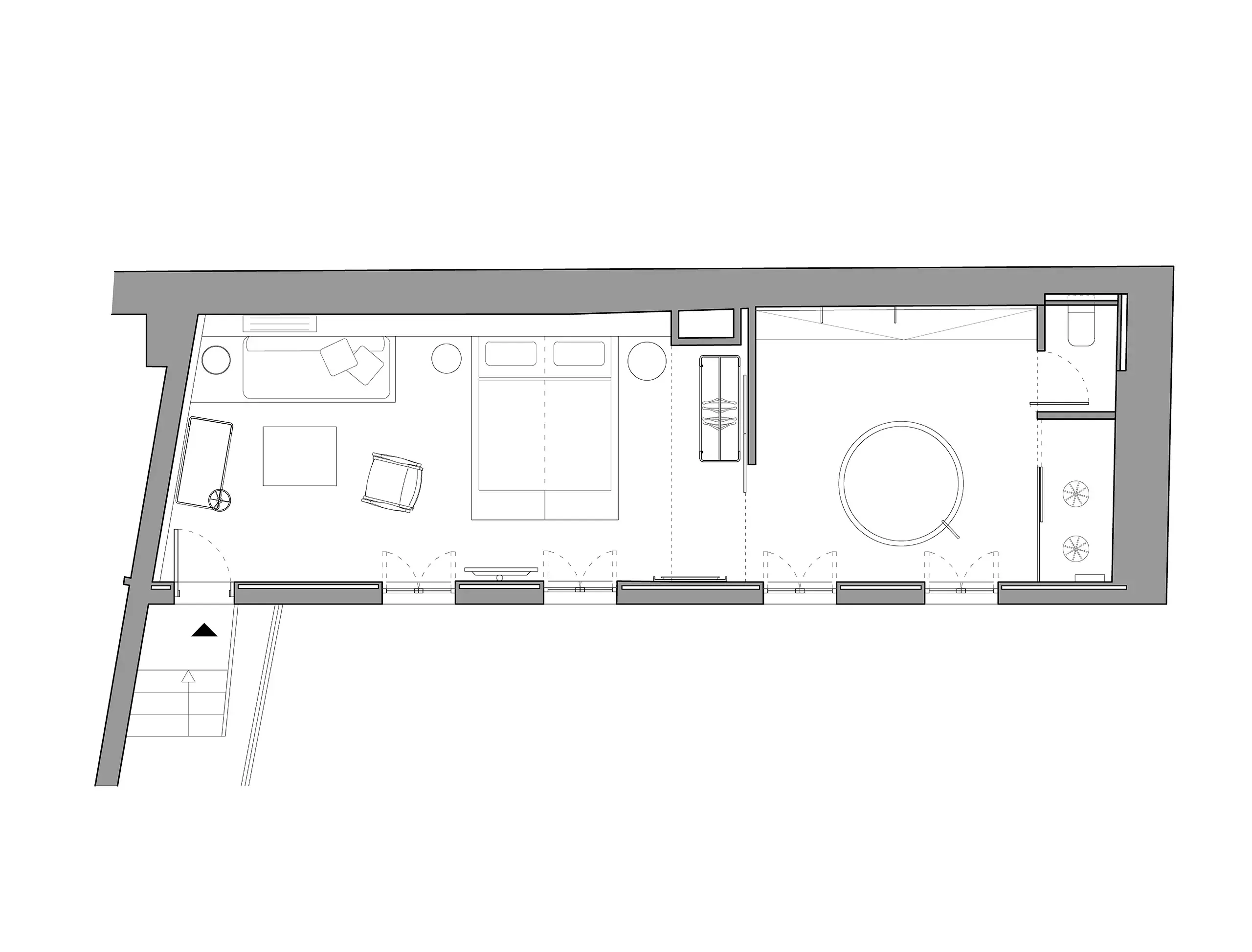
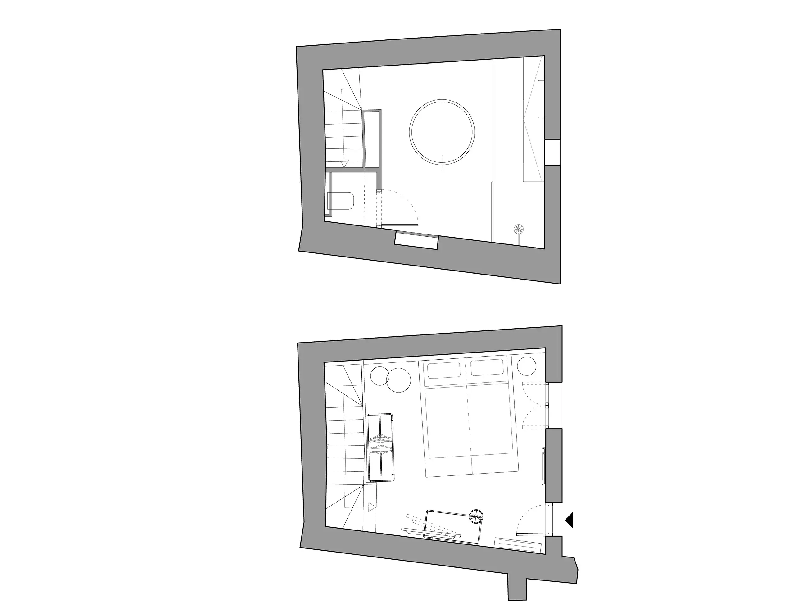
Adaptándose a diferentes edificios existentes, el hotel tiene una configuración muy irregular. El proyecto de reforma de OHLAB aprovecha esa complejidad como potencial para generar espacios inesperados y únicos en donde cada habitación es totalmente diferente. El proyecto resuelve cada habitación con una distribución y unas soluciones individualizadas y únicas. La selección de materiales naturales, locales enfatizando la esencia mediterránea ha sido muy importante. Otro aspecto principal han sido los baños como elementos de disfrute, muy amplios e integrados en las habitaciones, con generosas bañeras exentas escultóricas que se sitúan en los dormitorios como una pieza más de mobiliario.
El artista Pedro Oliver ha colaborado estrechamente con OHLAB produciendo una obra pictórica especial para este proyecto con unas pinturas murales a medida y únicas para cada habitación a modo de frescos dispuestos estratégicamente en las estancias.
La mayor parte del mobiliario ha sido diseñado específicamente por OHLAB para el hotel. Camas, cabeceros, descalzadores, de líneas puras y sencillas se integran en la habitación creando una atmósfera lounge y relajada. Destacan una serie de piezas basadas en carros metálicos de bronce envejecido, inspirados en los carros de maletas que usan tradicionalmente los botones, que sustituyen a los antiguos armarios, mesas, minibares y muebles de apoyo.
El carro maxi bar, incluido dentro de esta serie, es un carro que incluye los elementos más lúdicos de la habitación y funciona como un fragmento de un auténtico bar con todos las herramientas necesarias para realizar los mejores cócteles dentro de la habitación.

Puro Hotel

Palma de Mallorca

Puro Hotel

Palma de Mallorca
Habitación 011/5
Puro se define como un oasis urbano, cosmopolita y contemporáneo pero con raíces locales que lo hacen único. Una paleta simple de materiales naturales se repite como constante en todo el proyecto: madera de roble, lavabos y revestimientos de baños de cemento, recuperación de muros antiguos de marés –piedra calcárea tradicional en la arquitectura mallorquina-, cuerdas de cáñamo natural, interruptores y griferías de acero inoxidable, cuero envejecido, lino, algodón, telas diseñadas por OHLAB y producidas en antiguos telares mallorquines para las tapicerías, cojines y plaids, alfombras de rafia y cestas de mimbre producidas localmente, etc. También se han recuperado las puertas mandala de madera maciza, sello de identidad del hotel desde sus orígenes.

Puro Hotel

Palma de Mallorca

Puro Hotel

Palma de Mallorca