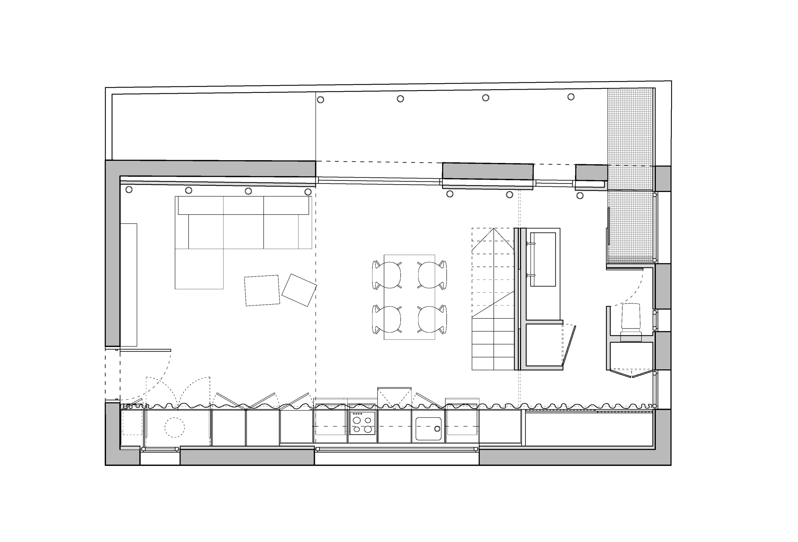
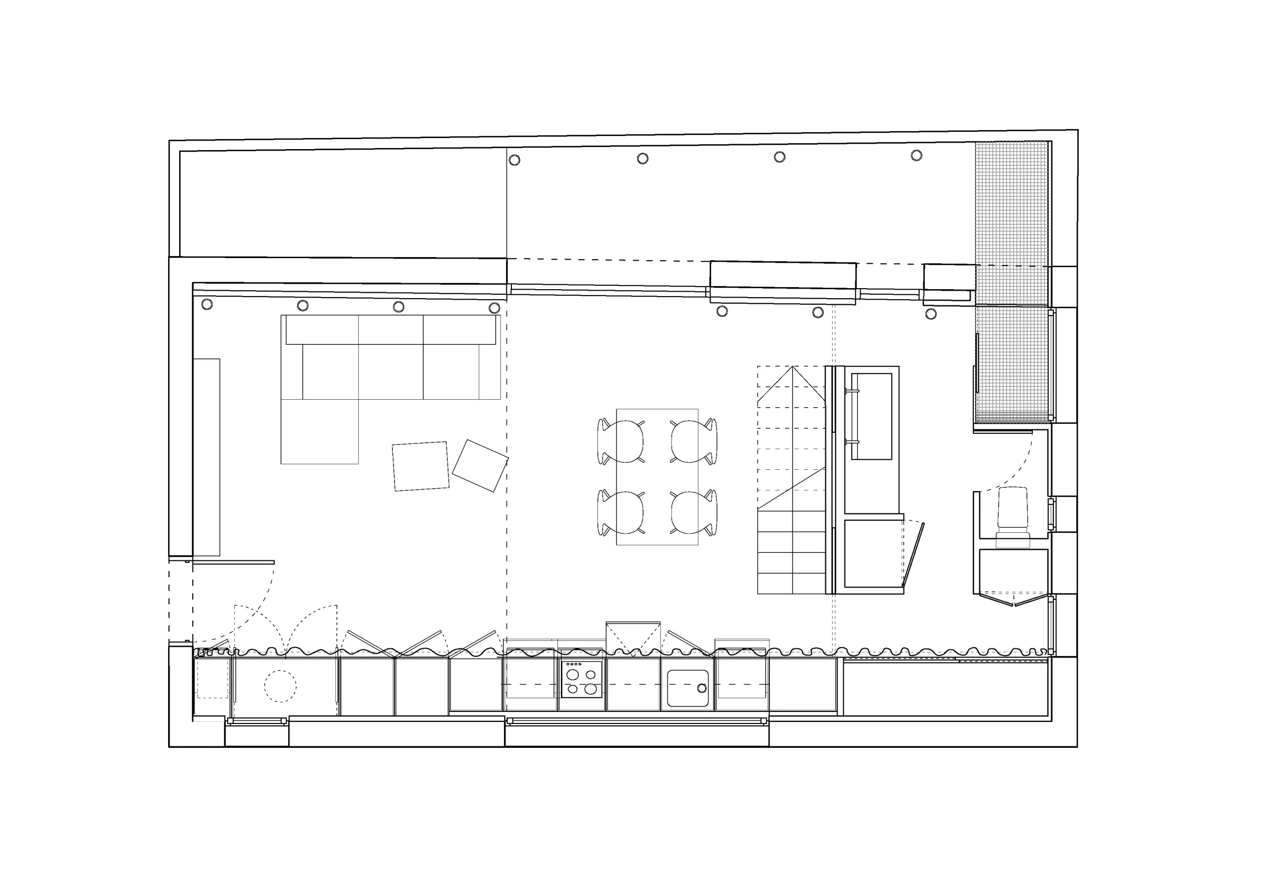
Este proyecto empezó como un juego, cómo satisfacer 12 deseos o fantasías de una pareja en un reducido dúplex. Algunos de esos deseos eran poco comunes para pequeños apartamentos urbanos: ducha con vistas, desayuno en el parque, golf en casa, bañarse en el campo, cocinar en el centro de la casa, barra de cócteles al atardecer, cenar bajo las estrellas, teatro exhibicionista en el salón, etc…
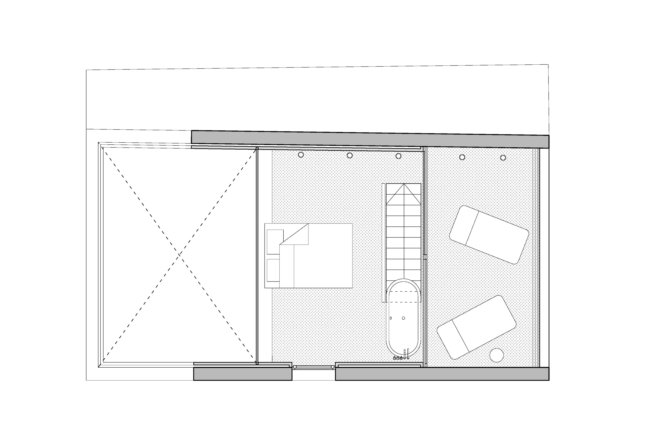
El proyecto se desarrolla a partir de 3 “cortinas” de materiales falsos que permiten una serie de momentos inesperados dentro del limitado espacio de la vivienda: una cortina de piel blanca de 10 metros organiza el programa de la estancia principal escondiendo o desvelando una pequeña oficina, una cocina y un vestidor; una cortina de oro envuelve la ducha creando un spa interior/exterior enmarcando el skyline de Madrid; por último, en el piso de arriba, una cortina de césped cubre el suelo del dormitorio y de la terraza convirtiendo el altillo en una pequeña pradera sobre la ciudad.
Refugio Urbano
Madrid
Este proyecto empezó como un juego, cómo satisfacer 12 deseos o fantasías de una pareja en un reducido dúplex. Algunos de esos deseos eran poco comunes para pequeños apartamentos urbanos: ducha con vistas, desayuno en el parque, golf en casa, bañarse en el campo, cocinar en el centro de la casa, barra de cócteles al atardecer, cenar bajo las estrellas, teatro exhibicionista en el salón, etc…
El proyecto se desarrolla a partir de 3 “cortinas” de materiales falsos que permiten una serie de momentos inesperados dentro del limitado espacio de la vivienda: una cortina de piel blanca de 10 metros organiza el programa de la estancia principal escondiendo o desvelando una pequeña oficina, una cocina y un vestidor; una cortina de oro envuelve la ducha creando un spa interior/exterior enmarcando el skyline de Madrid; por último, en el piso de arriba, una cortina de césped cubre el suelo del dormitorio y de la terraza convirtiendo el altillo en una pequeña pradera sobre la ciudad.
Equipo OHLAB: Paloma Hernaiz, Jaime Oliver, Ana Pereira, Michelle James
Dirección de obra: Paloma Hernaiz, Jaime Oliver
Fotos: Miguel de Guzmán
Cuadros de Pedro Oliver y Xavier Puigmartí
Premios
Mención de Honor en los A+ Awards 2013
Catalogados para los premios Arquia Próxima 2010/2011 (Fundación Caja de Arquitectos)
Nominado para los premios Mies van der Rohe 2011 (Premio de Arquitectura de la Unión Europea)
Finalista en los premios Saloni de Arquitectura e Interiorismo 2010
Publicaciones
Revista HOME Taiwan nº157
DESIGNERHK.COM Febrero 2014
DESIGNBOOM
DETAIL nº14. Japón
Revista IW Taiwan nº92
DISEÑO INTERIOR nº246
CATÁLOGO ARQUIA PRÓXIMA 2010/2011 (Caja de Arquitectos)
DIARIO DE MALLORCA. Agosto 2012
Revista holandesa A10 nº34
EL PAIS SEMANAL. Mayo 2010