Vivienda Protegida

Madrid

Vivienda Protegida

Madrid

Vivienda Protegida

Madrid

La propuesta se organiza con el orden que preestablece la Normativa, Bloque alineado en sus retranqueos al viario circundante, con rupturas puntuales y conexiones mediante pasajes/pasarela que le dan carácter unitario aun siendo piezas fragmentadas de una propuesta común, enmarcando volúmenes rotundos y de apariencia intencionadamente “lineal y horizontal” y reinterpretando los signos de “ruptura” al utilizar en el diseño referencias de pasarelas que actúan como elementos de articulación permitiendo además reducir el número de núcleos y portales y crear una eficiente red de pasarelas que da unidad y singularidad al conjunto.

Vivienda Protegida

Madrid

La propuesta se organiza con el orden que preestablece la Normativa, Bloque alineado en sus retranqueos al viario circundante, con rupturas puntuales y conexiones mediante pasajes/pasarela que le dan carácter unitario aun siendo piezas fragmentadas de una propuesta común, enmarcando volúmenes rotundos y de apariencia intencionadamente “lineal y horizontal” y reinterpretando los signos de “ruptura” al utilizar en el diseño referencias de pasarelas que actúan como elementos de articulación permitiendo además reducir el número de núcleos y portales y crear una eficiente red de pasarelas que da unidad y singularidad al conjunto.

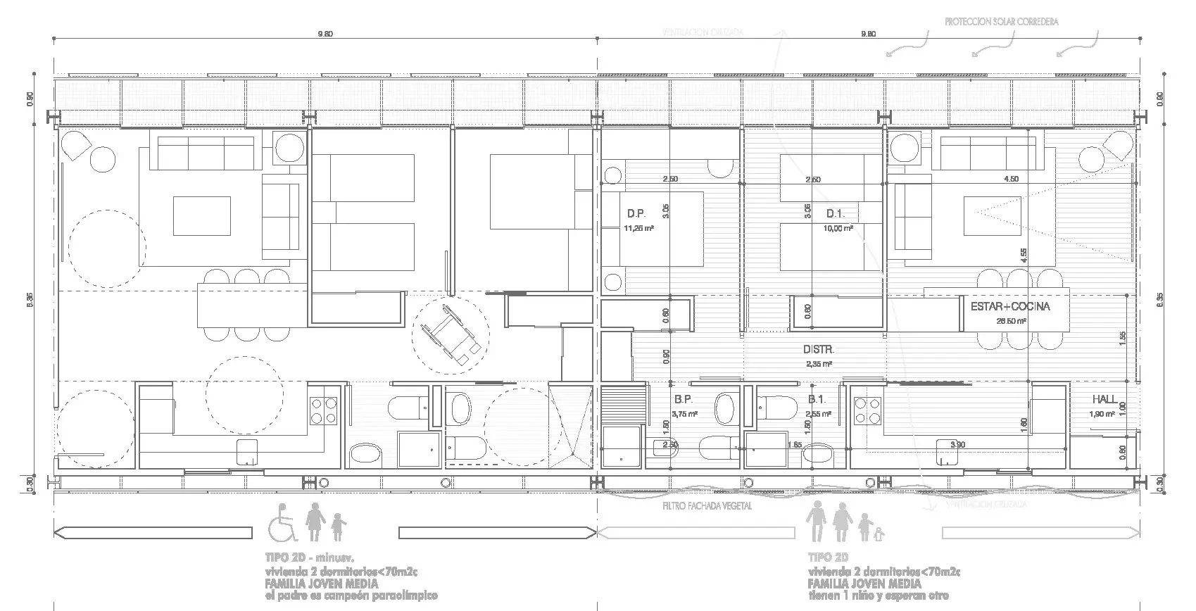
Las viviendas se agrupan en 20 piezas horizontales orientadas a sureste. Cada una de las piezas adopta una orientación ligeramente diferente creando una serie de plazas y espacios públicos y semiprivados diferenciados entre sí. Las fachadas noroeste, de servicios y accesos, están recubiertas de una capa vegetal de bajo mantenimiento sobre una estructura independiente que aporta aislamiento adicional a las viviendas, garantiza la privacidad entre bloques y genera una imagen cambiante a los espacios urbanos. La fachadas sureste de cada bloque son diferente gracias a la utilización de algunos materiales de última generación (chapas composite de diferentes colores, tableros de fibras y resinas fenólicas, combinado con texturas de revocos transpirables y vidrio) dando independencia a cada uno de las piezas y confiriendo una imagen dinámica y variada al conjunto.
Las viviendas, todas de doble orientación pasante y de distribución flexible gracias a la agrupación de servicios en bandas perimetrales, comparten núcleo con los 2 bloques contiguos a través de la estructura de pasarelas, permitiendo compartir 5 ó 6 viviendas por núcleo sin tener corredores paralelos a la fachada.

La red de pasarelas funciona como una eficiente estructura de accesos que “cose” todos los bloques aportando unidad y singularidad a toda la propuesta en forma de intervenciones puntuales. Se propone utilizar los recursos sobrantes de optimizar enormemente los núcleos y portales a la creación de una red de espacios singulares de acceso en altura. Cada cruce de las pasarelas de acceso con los bloques (2 ó 3 cruces por bloque según su longitud) se convierte en un espacio singular que funciona, según su disposición, bien como jardín.

Vivienda Protegida

Madrid

Vivienda Protegida

Madrid

Vivienda Protegida

Madrid

Vivienda Protegida

Madrid